






8269 zł/m²
(z VAT)Powierzchnia:
108.72 m²
Liczba pokoi:
5
Typ:
dom
Rynek:
Rynek pierwotny
Najem:
Nie
Typ budynku:
dom wolnostojący
Rok budowy:
2026
Materiał budynku:
Drewno
Ogrzewanie:
Pompa ciepła
Okna:
stolarka drewniana trzyszybowa, okna połaciowe VELUX, dodatkowe szklenie w ścianie szczytowej poddasza
Dach:
blachodachówka modułowa NOVATIK
Wymiary działki:
688 m²
Ogrodzenie:
Tak
Położenie działki:
obrzeża miasta
Standard wykończenia:
developer
Typ sprzedającego:
Deweloper
Dostępne od:
31.03.2026
Sprzedaż zdalna:
Niedostępna
Dostępne media:
prąd, woda miejska, siła, klimatyzacja, pompa ciepła, ogrzewanie podłogowe, panele fotowoltaiczne, rekuperacja, Prąd, Woda, Internet, Ogrzewanie
Zabezpieczenia:
teren ogrodzony, Osiedle zamknięte, Ogrodzenie
Dodatkowe cechy:
antresola z balustradą z drewna i szkła bezpiecznego, schody drewniane z balustradą z drewna i szkła bezpiecznego, płyta fundamentowa, stelaże sanitarne podtynkowe GROHE, 2 szt., instalacja fotowoltaiczna 5,8-6,4 kWp, Ogród, Miejsce parkingowe
Akacjowa
Siedlisko
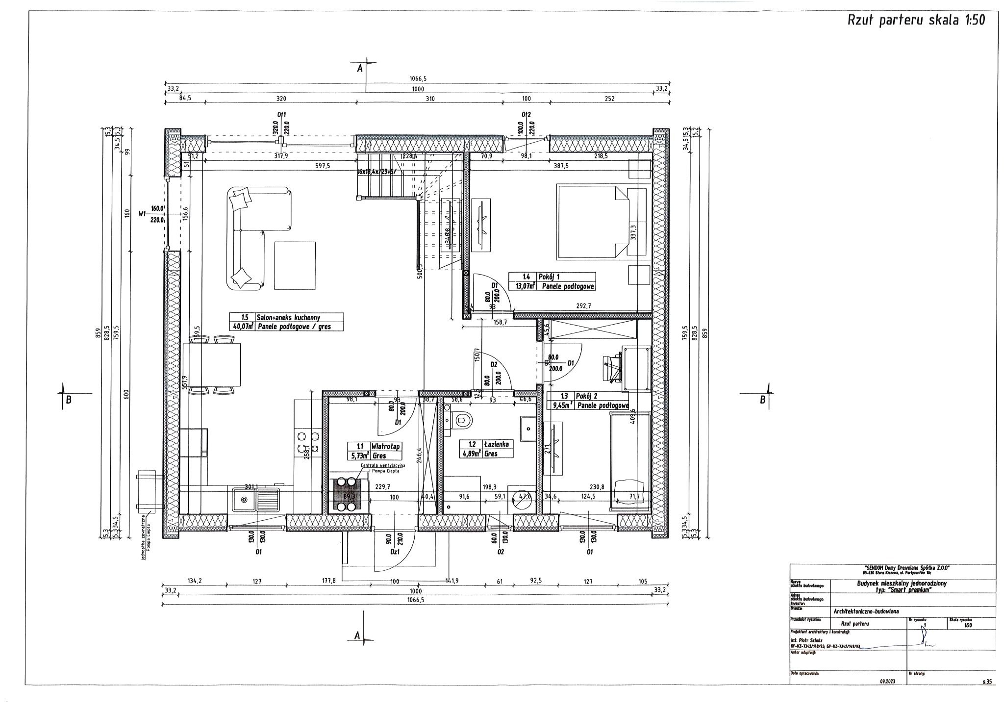
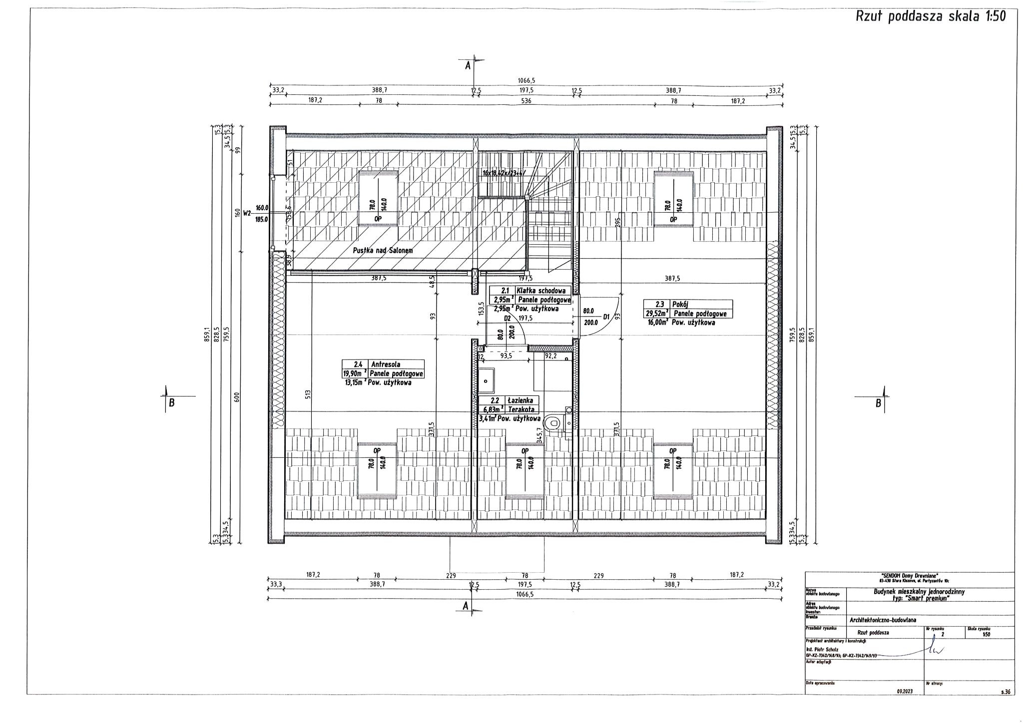
Sendom SMART Premium, pow. użytkowa 111 m², po podłodze 129,46 m², działka 688 m². Na parterze: salon z aneksem kuchennym, 2 pokoje, łazienka, wiatrołap. Na poddaszu: 2 pokoje (1 z antresolą), łazienka. Inwestycja: Słoneczne Siedlisko. Otoczenie: obrzeża miasta, luźna zabudowa jednorodzinna, tereny zielone i rekreacyjne, cicho.
Właścicielem inwestycji jest Bud Haus Sp. z o.o. NIP: 7262706012
Orzeszkowej 42, 91-479 Łódź
Ładowanie historii cen...
BUD Haus
wbudryn@gmail.com
502 532 859
Biuro sprzedaży: Orzeszkowej 42, 91-479 Łódź